6/17/2021
Changes:
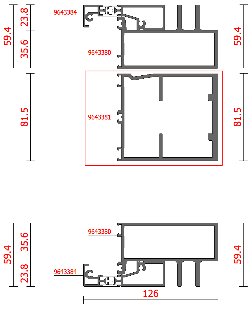
- Louver transom 9643381 added.
Create/Open Mission Rock G unit and as Transom profile choose 9643381
Hint: To add new transom please select the infill and right click > Split areas.
As Number of widths set 1, as Number of heights set 2 (or more, if you need more transom divisions).




