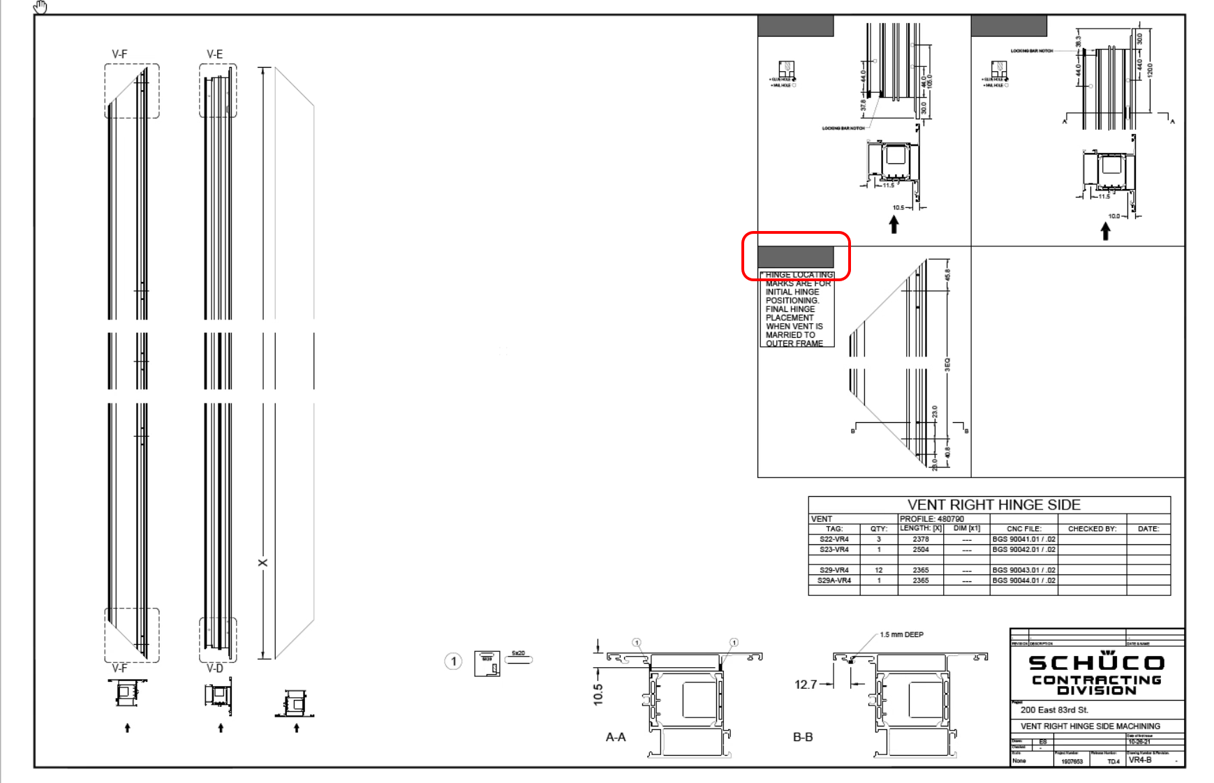
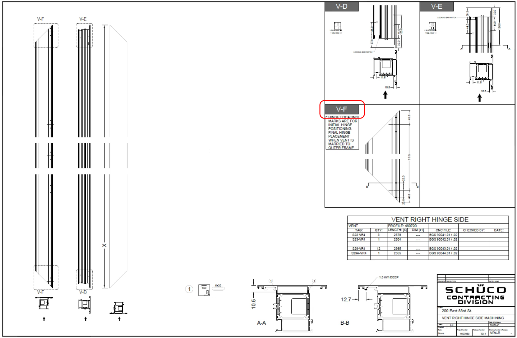
AutoCad problem: Some objects placed over the others disappear when printed as Batch Plot
Sample AutoCad project file contains white text label object placed over the grey solid hatch area, as on the example below :

After generating Batch Plot to PDF file the text object disappears from the print area:

Solution:
The problem is caused by improper setting of blending/merging of the overlapping lines.
You can fix this by changing Merge Control setting in Batch Plot Options:
Run [Menu] > Print > Batch Plot:

Click Publish Options:

Set the setting Merge control to Lines Overwrite:

As the result the text object should became rendered correctly now:

