How to add reinforcement profile to interlock vent frame in ASS/ASE systems

Right click the interlock and go to SLF interlock … section > Modify section:

From section list select one with reinforcement:

As we can see reinforcement profiles are inserted:

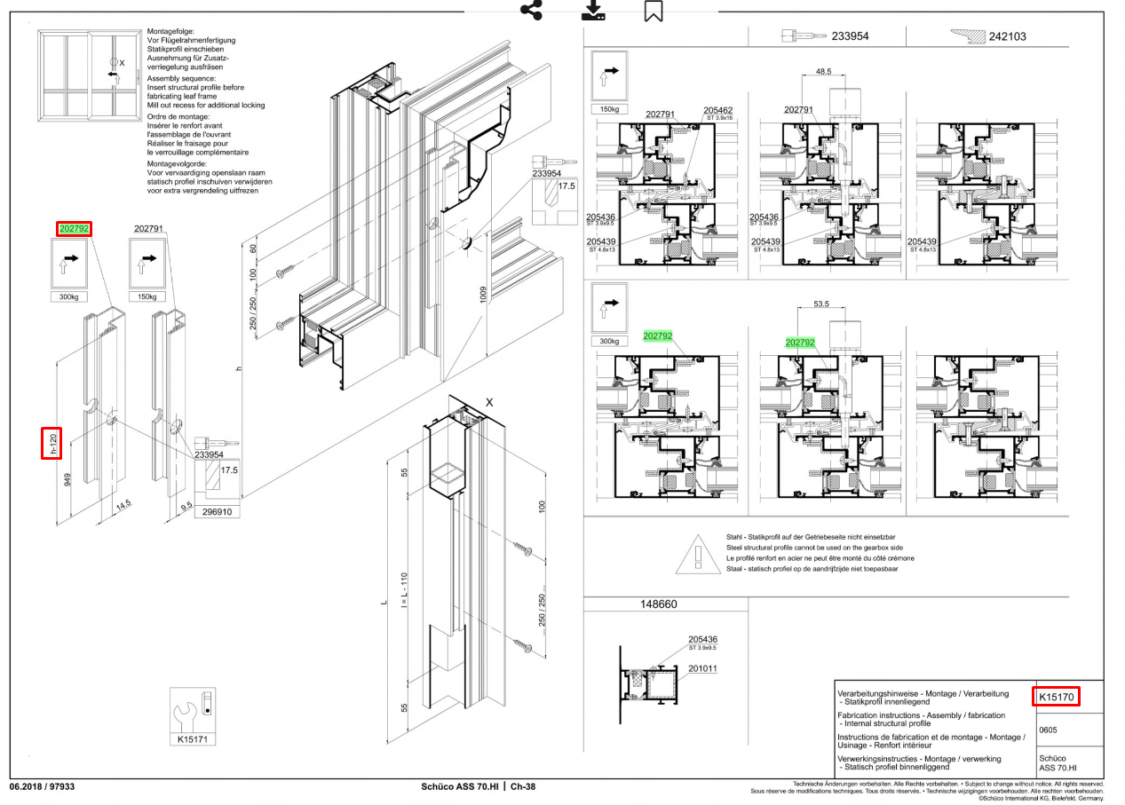
As K15170 drawing for ASS 70.HI shows 202792 reinforcement profile must be 120mm shorter than main vent frame profile:

This can be checked on Cutting optimization.

On this example we can see that 202789 reinforcement profile is 1782 mm length:

The vent profile 430090 is 1902mm:

What gives us exactly 120 mm difference.

You may also like...