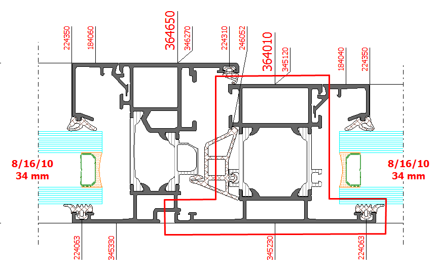
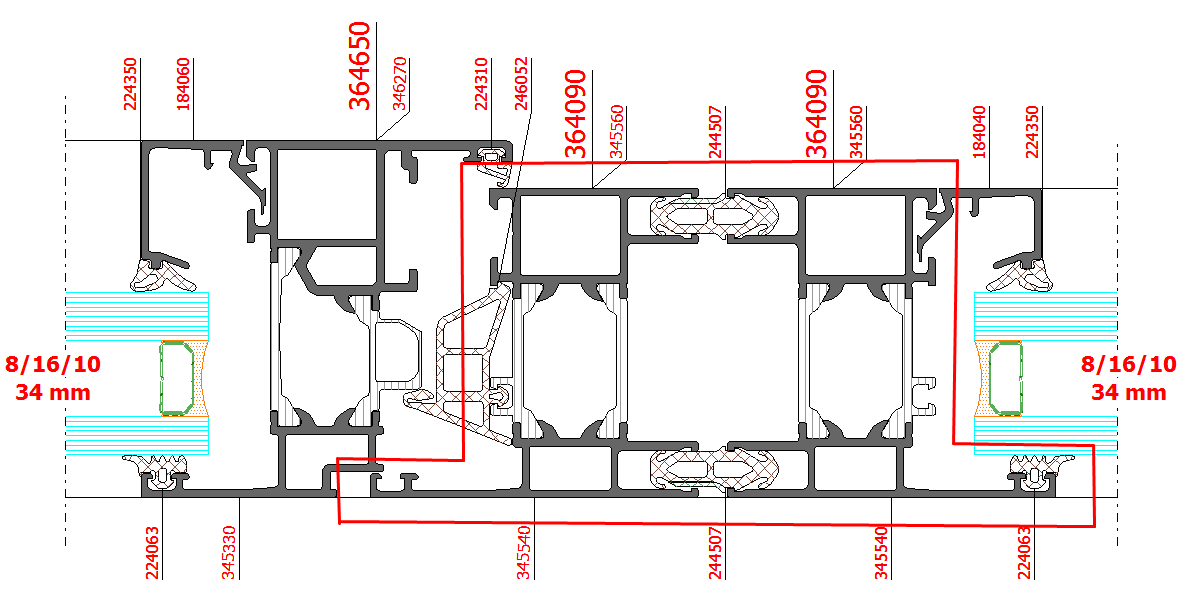
How to create split mullion with coupling gaskets for AWS system?
Create the unit with regular mullion:

On the 3D model right click on this mullion and choose Generate coupling:

Schucal will ask you to pick two profiles, left and right. Select left expansion profile:

After that select second, right expansion profile:

Choose coupling type:

That’s it. Coupling mullion is created:

