How to generate set of 2D AutoCad details out of multiple Schucal units?
Software requirements:
- SchuCad license
 - Autodesk AutoCad
 
The first necessary step is to check if each of the units in the project has proper section line defined. Section line in the 3D model defines which 2D details will be included in overall 2D detail set.
How to create section line:
Open each of the units. Holding left CTRL key on the keyboard select all members (vertical or horizontal) which cross sections you want to include in the Cad drawing set:

On the Edit tool bar ribbon click Create button on Profile section area. This will generate section line as on the screenshot below:

Prepare the same procedure for each the units in the project.
Select all units in the project by CTRL-A method or CTRL > Select The Units and click right mouse button. From contextual menu choose CAD project plan:

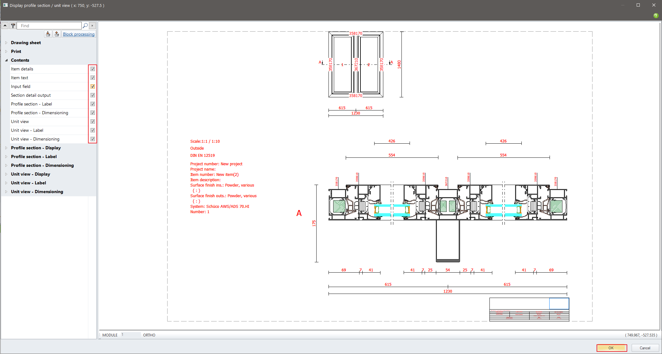
On preview window choose which detail components you want to include in the drawing. Click OK:

Now, give it a time. Schucal will run AutoCad and generate all units’ details and sections in one AutoCad drawing.

