Schucal 2019 R3 – Changes for US market
General
Contacts:
Supplements for aluminum surface finishes – fixed lengths
In the Contacts dialog box, new input options for supplements for small bar lengths have been included for the system coater Schüco and for the coater templates for third-party coaters.
In the conditions, new input fields are available for the following Fixed lengths under the Aluminum surface finish supplements group:
< 1001 mm
< 3001 mm
< 5001 mm

Unit Editing
Schüco FWS 50/60:
Unit parameter for thermal insulation – single glazing
As of this version, the entry Single glazing can be selected for the unit parameter Thermal insulation for units in the Schüco FWS 50 und Schüco FWS 60 systems. Single glazing of 4-14 mm is possible with this selection.

Schüco AWS 50/65/70:
Single- and double-vent window doors, barrier-free with 20 mm threshold
As of this version, the Schüco AvanTec SimplySmart fitting for barrier-free window doors with the selection option Inward-opening, easy access balcony/patio door, 20 mm threshold can also be selected in the systems with basic depths of 50 mm to 70 mm.

AWS window systems:
Glazing bridges (support) for RC (burglary resistance) glazing beads 
The new glazing bridges (support) are calculated.

Schüco AvanTec SimplySmart and surface-mounted SimplySmart window fittings:
New minimum dimensions for shaped windows:
When calculating the Schüco AvanTec SimplySmart and surface-mounted SimplySmart window fittings, the new minimum dimensions for shaped windows, which are documented in Order manual 1-3 SimplySmart – Schüco SimplySmart window fittings (10.2019), are taken into account.
Tilt/slide window fitting:
Discontinuation of surface-mounted fitting
The surface-mounted fitting (BASIC – surface-mounted fitting types etc.) can no longer be selected for new tilt/slide units. Existing items remain unchanged.
Schüco SimplySmart toplight fitting:
RC2 and RC3 burglar resistance
As of this version, the SimplySmart (OL 200 and OL 320) toplight fitting can be selected for opening type 210: Toplight with resistance classes RC2 and RC3.
Schüco AvanTec SimplySmart burglar resistance RC1N, RC2:
Gearbox
The gearbox Art. No. 277399 (AWS 60/70/75) and Art. No. 277400 (AWS 90) can be used for RC1N and RC2 units.
Prerequisites:
- A suitable vent profile must be selected.
 - Window doors: Can only be selected for zero level threshold options.
 - Turn/tilt and tilt-before-turn windows: Can only be selected for operating type Standard with reduced operating force.
 
Schüco AWS 75 PD.SI:
Update to order and fabrication manual 1-1E (10.2019)
The calculation is carried out in accordance with the updated order and fabrication documentation.
Schüco AD UP – System enhancements:
Leaf-enclosing door infills on both sides
- The new fixing screw Art. No. 225342 is calculated.
 - The adhesive tape 220443 is calculated.
 
Schüco AD UP – System enhancements:
New base profiles
- Schüco AD UP 75 and Schüco AD UP 75 BL: Art. No. 265968 (50 mm) and Art. No. 265969 (100 mm).
 - Schüco AD UP 90: Art. No. 265970 (50 mm) and Art. No. 265971 (100 mm).
 
System templates for windows/doors:
New template for “Corner windows with 90 degree corner mullion”
As of this version, a new template is available in addition to the existing system templates for Corner window and Corner window without corner mullion.
System templates > 01 – Windows & Doors > 03 – Geometry > 05 – 3D

When this new template is selected, corner windows are always created with corner mullions. The corner profile can be changed in the item. The rule “last used with the template” does not apply.
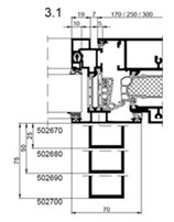
Schüco AWS 75 PD.HI:
Change to axis dimensions when using Art. 502670, 502680, 502690 and 502700 as mullion/transom
The reference has been moved by 4.95 mm to the center of the outer chamber for the profile Art. Nos 502670, 502680, 502690 and 502700 (purpose Mullion and Transom).

For existing items, please note:
As a result of this correction, the axis dimensions for the unit and thereby all related vent and glass dimensions have changed. Please check your affected items.
Schüco ASE 67 PD:
90° corners
(Outer/vent frame versions: 57/57, 57/57 light, 90/90, 90/57SC and 57/90SC)
As of this version, corner units can be entered.
Double and triple-track 90° inner and outer corners
Double and triple-track 90° corners can be created so that they correspond to the following types in the order manual:

In the Select template dialog box, select the new templates as the system templates (04 – Sliding units -> 01 – Sliding and lift-and-slide units).

In the Item properties dialog box, you can specify the width of the vents and the position of the access vent in the unit parameters. Using the Corner construction unit parameter, you can specify whether an outer corner or an inner corner is to be created.
For the type 2C 90° outer, you can change the opening type to 0: Fixed light for an outer corner in the required plane.
Double-track 90° all-glass corners as inner and outer corner
Double-track 90° corners can be created so that they correspond to the following types in the order manual:

In the Select template dialog box, select the template Double-track 90° all-glass corner as the system template (04 – Sliding units -> 01 – Sliding and lift-and-slide units).

In the Item properties dialog box, you can specify the width of the vents in the unit parameters. Using the Corner construction unit parameter, you can specify whether an outer corner or an inner corner is to be created. You can specify the type of glass corner (miter, butt joint with stepped glass) using the unit parameter Glass design in corner.
If you have selected the option Miter for the glass design in the corner, you must specify in the technical settings how the miter is to be designed in the glass corners (Glazing group > Glass edge for all-glass corner (miter)).
Schüco ASE 67 PD:
Calculation of adhesive for additional bonding
As of this version, the adhesive required to bond the infill is calculated with the vent (special adhesive Art. No. 288180, surface activator Art. No. 288181 and bonding agent Art. No. 265431).
The adhesive requirement is calculated based on the fabrication guidelines documented in the order and fabrication manual. Additional quantities of adhesive to compensate for any deviations during bonding must be entered as additional material.
Schüco ASS 77 PD.HI, Schüco ASS 77 PD.NI:
Resistance classes
As of this version, the following types can be created in further resistance classes. When selecting the type of fitting, the choices in the Field properties dialog box have been changed and enhanced.
| Types | Fittings types Old | Fittings types New | |
| Type 2A/1
 
 Type 2A/1.2  | Standard | => | Standard | 
| RC1 capability | => | RC1N * | |
| RC2N | |||
| RC2 capability | => | RC2 * | |
| Without fitting | => | Without fitting | |
| * This change affects the calculation of existing items. | |||
| Types | Fittings types Old | Fittings types New | |
| Type 2A
 
 Type 2A.2 Type 2B  | Standard | => | Standard | 
| RC1N
 
 RC2 RC2N  | |||
| Without fitting | => | Without fitting | 
Schüco ASS 77 PD.HI, Schüco ASS 77 PD.SI, Schüco ASS 77 PD.NI:
SNO/SNS sensor unit with SK2 finger-trap protection
As of this version, there is the option to calculate the SNO/SNS sensor unit (Art. 262935). If the entry SK2 is selected for the property Finger trap protection in the Field properties dialog box under the Fitting group, you are presented with the additional checkbox SNO/SNS sensor unit.
Schüco ASS 39 PD.NI:
Interlock section profiles with reinforcement (structural profile)
(As of 2019 R2 SP01)
Previously, the reinforcing option for the interlock section profile could be selected by the Modify section function.

As of 2019 R2 SP01, the reinforcement option can be selected from a drop-down list in the Field properties dialog box when selecting the SLF interlock section profile (Structural profile on inside, small; Structural profile on inside, large; Structural profile on both sides, large).

Modify section is only displayed and preset for existing items and the original profile setting is retained.
The vent widths are calculated in line with the structural profiles used.
Schüco ASS 80 FD.HI:
Supplementary profiles Art. No. 430400 and Art. No. 430410 no longer pre-rolled
The supplementary profiles Art. No. 430400 and Art. No. 430410 can no longer be ordered pre-rolled.
Please note:
If the setting in the master data for these articles was for pre-rolled, the setting is changed automatically with this version to customer-rolled.
If these articles were set to pre-rolled in existing items, these are now converted automatically to customer-rolled.
Schüco ASE 60/80.HI DesignLine:
New unit parameter “Type”
(As of 2019 R2 SP02)
You use the new unit parameter Type to calculate how the center section is designed (Item properties dialog box > Item data tab > Unit parameters group).
When DesignLine is selected, the narrow interlock section profile is calculated (Schüco ASE 60: Art. No. 494450; Schüco ASE 80.HI: Art. No. 494410).
Existing items are not changed. The selection for the unit parameter is preset according to the interlock section profile chosen.
Schüco ASS 70.HI Design Edition:
Unit parameter “Type” – “Design Edition” renamed
(As of 2019 R2 SP02)
The Design Edition option for the unit parameter Type has been renamed DesignLine. (Item properties dialog box > Item data tab > Unit parameters group).
The calculation does not change. With the Design Line selection, the center section is designed as usual in accordance with ASS 70.HI Design Edition with a narrow double vent area.
Technical settings
Schüco AWS window systems:
Settings for the glazing rebate insulation
- The property AWS 65, AWS 70.HI glazing rebate insulation has been renamed as Glazing rebate insulation.
 - The checkbox has been replaced with drop-down list. You can now use this to select the required option for the glazing rebate insulation.
 - As of this version, the property is also available for the following systems:
Schüco AWS 90.SI
Schüco AWS 90 BS.SI+
Schüco AWS 120 CC.SI
 
Technical settings, U value calculation group > Glazing rebate insulation

Schüco AWS 75 BS.SI+:
Settings for the glazing rebate insulation
As of this version, you can use the property Type of glazing to select which glazing rebate insulation is calculated for the glazing of the asymmetrical mullion (insert before or after glazing, standard or C2C standard).
Technical settings > U value calculation group > Type of glazing

Schüco ASE 67 PD:
Color for end stops and buffer stops
(Technical settings > Colors group)
- The technical setting Door holder has been renamed End stop.
 - The technical setting Spacer has been renamed Buffer stop.
 
The available options in the selection lists remain unchanged.
Schüco ASE 60/80.HI:
Single-track types: T-cleats for customer fabrication for mullion profiles
The T-cleats for customer fabrication for the mullion profiles Art. 490100, 490110, 490140 and 490150 are no longer available.
If the T-cleats Customer fabrication – screw-type or Customer fabrication – nailed are set for single-track types in the technical settings, as of this version, screw-type or nailed T-cleats are calculated in the packing unit instead.
For existing items, please note:
This change affects the calculation of existing items. Please check your affected items.
Schüco FWS 50/60:
Calculation of one-sided gasket with fin for transoms
(Technical settings > Gaskets group > Gasket with fin)


The technical setting Gasket on one side has been renamed Gasket with fin. As of this version, there is a drop-down list with the following selection options:
- Without gasket with fin
 - On all transoms
 - Only on upper transoms
 - Only on lower transoms
 - Only on inner transoms
 

Existing items remain unchanged. If you activated the checkbox for existing items in previous versions, as of this version, it will be set to On all transoms.
Schüco Integralmaster:
Changes to maximum possible sizes (order and fabrication manual 4-1 (10.2019))
The maximum possible sizes are tested in accordance with the sizes documented in the latest order manual.
Output lists
Material list:
Optional output of article descriptions from the article management
As of this version, you can find the new feature Article description from article management in the output options for the material list under the Additional information on the article group. If you activate this check box, the article descriptions from the article management are output for the articles instead of the purposes.

Barcode for fittings table:
Restrictions now apply for use of “Barcode 128”
Material list, infill panel plan, unit overview, list of window vents and fittings
If you output a code for automatic processing of the locking bars in the specified lists, please note: Under certain circumstances, the barcode with Code 128 does not support all properties of the opening that are required to calculate the locking bars. Please use the QR code and the scanner on the locking bar machine with article number 289220.
Forms
Planning documents:
Manufacturer’s checklist for Schüco ASE 67 PD
As of this version, the Manufacturer’s checklist document can be called up for the Schüco ASE 67 PD system.
General > Extras > Forms > ASE 67 PD and ASS 77 PD planning documents
